
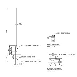
300mm flange plate template for fitting flange plated lighting collumns - requires 4 x M16 J-bolt set - item not included sold seperatley. PLEASE NOTE - Weight & Windage must be checked for suitability of the column against the installation postcode. Please email us for more information prior to purchase. It is the responsibility of the installer to ensure columns are installed safely and correctly, no liability will be accepted by The LED Store/supplier. In certain cases a ground survey may be required prior to installation. .
Tags:
template
, foundation kit
, flange plated lighting column
, 6m flange plated lighting column
, lamp post
, cctv post
, security post
, lamp pole
, pole light
, galvanised steel column
, lighting poles
, M16
, fabrikat flange plated lighting columns
, bei lighting
, kingfisher flange plated lighting
, LSTCOLM16TPLT
, LSTCOLM16TPLT
, LSTCOLM16TPLT-CU
, LSTCOLM16TPLTCU




















